Book A FREE Valuation


Price £995,000 New Instruction
  • Contemporary House
  • Patio Garden & Large Roof Terrace
  • Arranged Over Two Floors
  • Two Bathrooms
  • Close To Local Amenities
  • Freehold

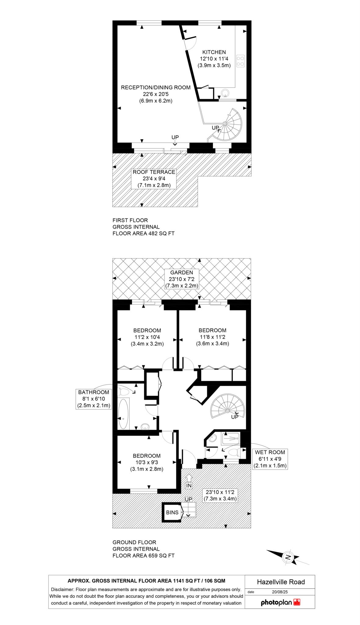
A three bedroom, two bathroom house with a patio garden and large roof terrace located in the Whitehall Park Conservation area and within close walking distance to Crouch End Broadway. Flooded in natural light and arranged over two floors, the ground floor accommodation comprises a large entrance hallway, three bedrooms, bathroom and a shower room. The first floor comprises a large reception room and a separate fitted kitchen. Externally the property has a patio garden to the rear of the property and a large 23 ft south-west facing roof terrace. The property is conveniently situated within close proximity to Whitehall Park Primary School, and walking distance to Archway Underground Station along with the amenities in both Highgate Village and Crouch End Broadway.

Material Information:

The property is Freehold with gas central heating. Fibre broadband is available on the road and the building is serviced by electricity and mains water and sewerage. CPZ street parking is available with restrictions from 10am - 2pm, Monday to Friday. Mobile phone coverage is available in the property.



Council Tax
London Borough of Islington, Band E

Notice
Please note we have not tested any apparatus, fixtures, fittings, or services. Interested parties must undertake their own investigation into the working order of these items. All measurements are approximate and photographs provided for guidance only.

Floor Plan
EER Chart

The Energy-Efficiency Rating is a measure of a home's overall efficiency. The higher the rating, the more energy-efficient the home is, and the lower the fuel bills are likely to be.

Utility Supply Type
Electric Mains Supply
Gas Mains Supply
Water Mains Supply
Sewerage Mains Supply
Broadband Cable
Telephone None

Other Items Description
Heating Gas Central Heating
Garden/Outside Space Yes
Parking No
Garage No

Broadband Coverage Highest Available Download Speed Highest Available Upload Speed
Standard 8 Mbps 0.9 Mbps
Superfast 78 Mbps 20 Mbps
Ultrafast 1000 Mbps 100 Mbps

Mobile Coverage Indoor Voice Indoor Data Outdoor Voice Outdoor Data
EE Likely Likely Enhanced Enhanced
Three Enhanced Enhanced Enhanced Enhanced
O2 Enhanced Enhanced Enhanced Enhanced
Vodafone Enhanced Enhanced Enhanced Enhanced

Broadband and Mobile coverage information supplied by Ofcom.


marker icon