Book A FREE Valuation


Price £3,200,000 New Instruction
  • Double Fronted Edwardian House
  • West Facing Garden
  • Off Street Parking
  • Currently Arranged as Three Flats
  • Requiring Modernisation
  • Close To Highgate Village

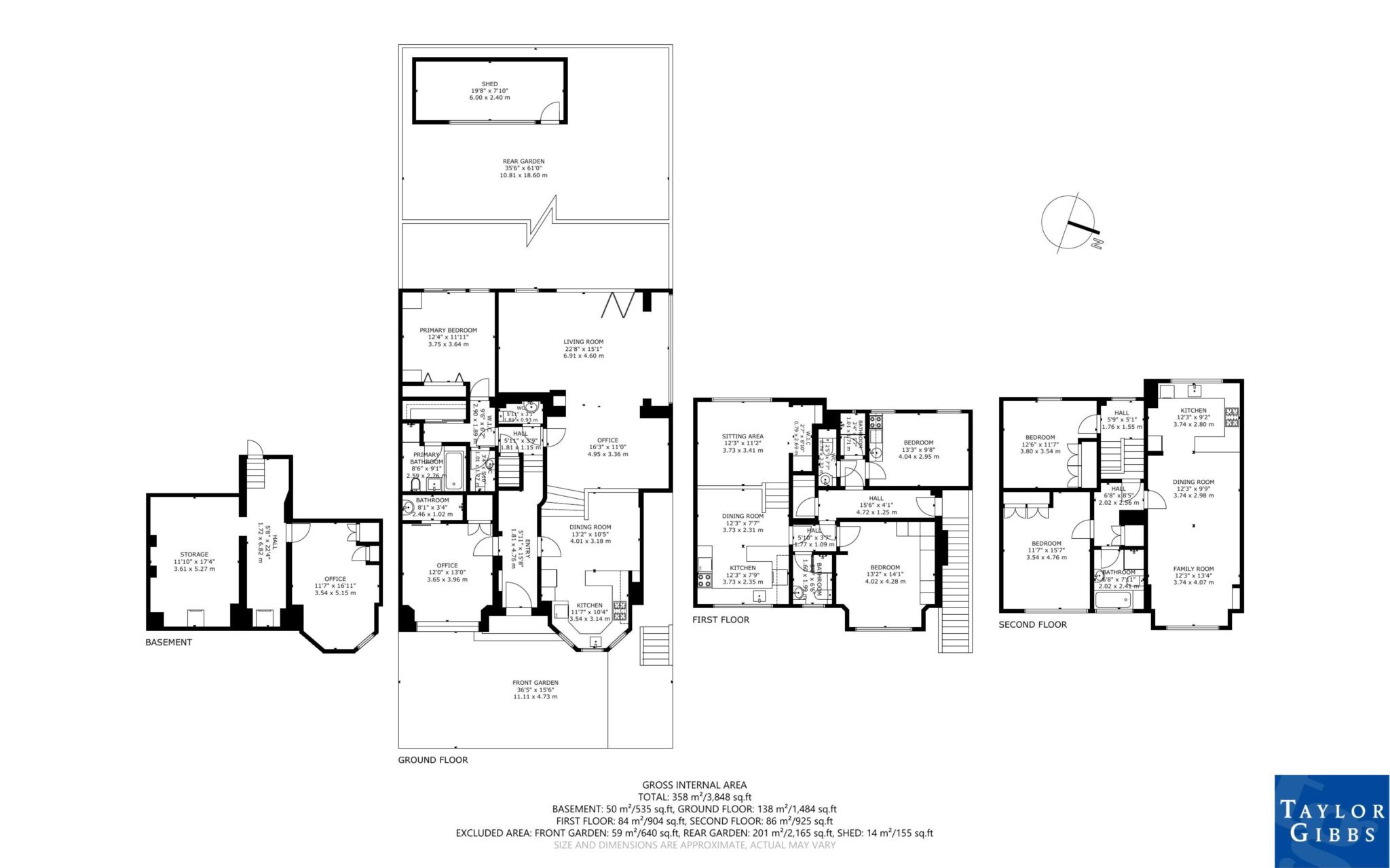
A magnificent opportunity to acquire an imposing double fronted Edwardian house located on one of Highgate's most sought after roads, within close walking distance to Highgate Village. Currently arranged as three flats and requiring modernisation with scope for expansion, subject to planning permission, this property offers flexible living space of approximately 3,848 sq feet, including the basement. The house retains an abundance of the period features and is arranged over three floors. The property would serve well as a five/six bedroom family home with three or four reception areas. Externally the property has a west facing rear garden and off street parking for two cars. The property is located close to Highgate Underground Station, some excellent local schools and Highgate and Queens Wood.

Material Information:

The property is freehold. As the building is currently divided into 3 flats, the council tax bands are band F, D & D. The property has gas central heating and fibre broadband is available. The building is serviced by electricity and mains water and sewerage. There is street CPZ parking available with restrictions from 10am - 12pm, Monday to Friday. Mobile phone coverage is available in the property.

The flood risk for Surface Water and from Rivers and Sea are assessed as very low on the Flood Risk Summary for the area. This location is outside of a groundwater flood alert area and flooding from reservoirs is unlikely in this area.



Notice
Please note we have not tested any apparatus, fixtures, fittings, or services. Interested parties must undertake their own investigation into the working order of these items. All measurements are approximate and photographs provided for guidance only.

Floor Plan
EER Chart

The Energy-Efficiency Rating is a measure of a home's overall efficiency. The higher the rating, the more energy-efficient the home is, and the lower the fuel bills are likely to be.

Utility Supply Type
Electric Mains Supply
Gas Mains Supply
Water Mains Supply
Sewerage Mains Supply
Broadband Cable
Telephone None

Other Items Description
Heating Gas Central Heating
Garden/Outside Space Yes
Parking Yes
Garage No

Broadband Coverage Highest Available Download Speed Highest Available Upload Speed
Standard Unknown Unknown
Superfast Unknown Unknown
Ultrafast Unknown Unknown

Mobile Coverage Indoor Voice Indoor Data Outdoor Voice Outdoor Data
EE Likely Likely Enhanced Enhanced
Three Enhanced Enhanced Enhanced Enhanced
O2 Enhanced Enhanced Enhanced Enhanced
Vodafone Enhanced Enhanced Enhanced Enhanced

Broadband and Mobile coverage information supplied by Ofcom.


marker icon